Appartement Le Havre 2 pièces 43.80 m2

LE HAVRE 76620
625 € / mois charges comprises *

* dont charges récupérables : 45 € / mois

Dépôt de garantie : 580 €

Honoraires charges locataires: 481.8 € TTC
dont honoraires d'état des lieux: 131.4 € TTC.

Proposé par votre agence :

2 place Voltaire

76300 SOTTEVILLE-LÈS-ROUEN

Réf : NAUTICK120
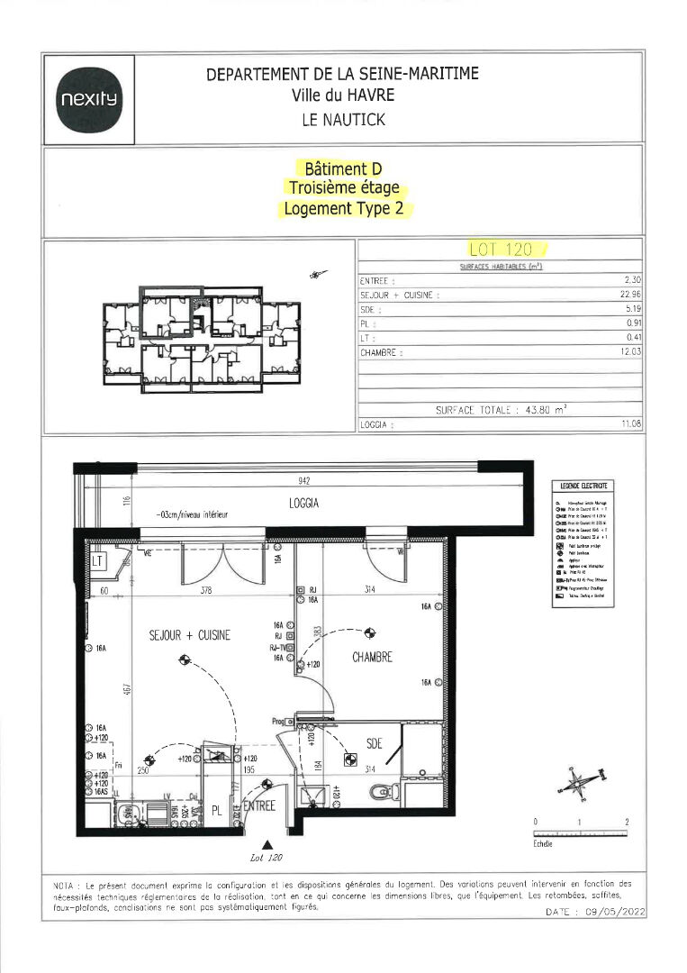
L'agence Guy Hoquet Normand Immo vous propose cet appartement neuf de type T2 situé au 3e étage comprenant une entrée, une pièce de vie avec cuisine, une chambre, une salle de bains avec WC, jouissance privative d'une loggia. Une place de parking... Voir plus
43.8 m²
2 pièce(s)
1 chambre(s)
1 sdb
Appartement Le Havre 2 pièces 43.80 m2

Descriptif

Réf : NAUTICK120
L'agence Guy Hoquet Normand Immo vous propose cet appartement neuf de type T2 situé au 3e étage comprenant une entrée, une pièce de vie avec cuisine, une chambre, une salle de bains avec WC, jouissance privative d'une loggia. Une place de parking... Voir plus
43.8 m²
2 pièce(s)
1 chambre(s)
1 sdb

Fiche technique du bien

Etage
3
Nombre étages
4
Provision sur charges
45 €
Dépôt de garantie
580 €
Jardin
Non
Année construction
2025
Salle(s) de bains
1
Diagnostic Energétique
Oui
Conso Energ
73 kWh/m2 par an

Bilan énergétique

Note : C
Logement extrêmement performant
Logement extrêmement peu performant
passoire énergétique
consommation (énergie primaire) 73 kWh/m².an
émissions (gaz à effet de serre) 15* kg CO₂/m².an
Note : C
* Dont émissions de gaz à effet de serre
peu d'émissions de CO₂
émissions de CO₂ très importantes
15 kg CO₂/m².an
Les informations sur les risques auxquels ce bien est exposé sont disponibles sur le site Géorisques : www.georisques.gouv.fr
Estimation du coût annuel en énergie pour un usage standard entre 510€ et 690€ au 01/01/2021

Le quartier

Collaborateur Allison Beaugrand

Votre conseiller

Allison Beaugrand, conseiller Guy Hoquet est à votre disposition

Les horaires

Lundi
09h00 - 19h00
Mardi
09h00 - 19h00
Mercredi
09h00 - 19h00
Jeudi
09h00 - 19h00
Vendredi
09h00 - 19h00
Samedi
09h00 - 12h00 / L'après midi ouvert uniquement sur rendez-vous
Dimanche
Fermé